
“希望我带给你的不只是设计,而是一种生活方式”
星河·第三空间“IDS大奖”第八届室内设计精英邀请赛
公寓空间设计入围作品
《一念之净》
作者:刘金峰
凡夫室内设计有限公司负责人
深圳南方都市报特邀设计师
中央电视台特邀作品拍摄嘉宾
作者

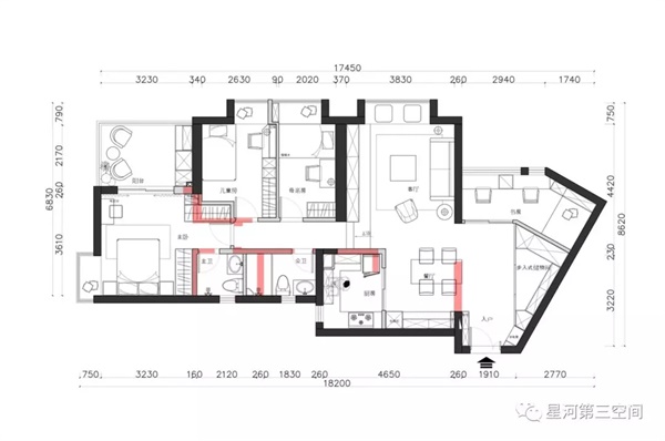
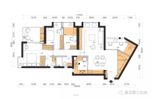
如何将看起来很拥挤的110㎡旧屋改造成收纳大宅?今天要给大家分享旧屋改造的秘诀!
入户


整个设计最大的亮点,更多的在户型改造上,入户异型空间的处理,将书房部分平行墙体,再将三角形部分刚好作为一个储物空间,这样,从入户进来完全看不出户型的异形感,书房的了两扇推拉门让光线充分进入到玄关,解决了原来入户的采光问题。

客厅


其次就是整个空间的收纳也是一个亮点,我们做了一个储物空间的数据计算,在这个110平方的空间里,整个空间的投影储物面积居然达到了30平方左右,如果算立体容量的话,居然高达50立方的收纳空间,也就是说差不多半个房子面积的收纳空间。



餐厅

拆除了餐厅和入户过道的墙,把鞋柜和餐边柜融为一体,模糊掉餐厅和入户的关系,于是餐厅的空间就可以借用到过道的共融空间,这样,餐厅看起来就特别阔绰了,解决了原来餐厅过于狭小的问题。


厨房面积不大,
在餐厅这面结合鞋柜做了一整面的餐边柜

将西厨功能延续出来,让厨房空间得以延续



卧室


主卧的适当借用儿童房的空间,将儿童房的不好用空间给到主卧,虽然只有60CM却让主卧多了三门衣柜,以及两个洗手间的尺寸取舍上,因为尺寸的问题。





书房

包括书房,由于尺寸的问题,我们书架特意让开榻榻米的空间,让书房又能在来客人的时候可以充当一个客房。


公卫

保留了公卫的足够舒适度尺寸,主卫放弃常规淋浴房的设计,只作为备用冲凉使用,将空间的利用率做到最大。

空间的合理利用,满足了人们的有效收纳,于是空间就自然舒适干净了,先满足功能需求以及收纳,自然就有设计内容了,这时候才是运用我们的美学知识,让空间呈现出想要表达的美学气质以及生活格调。